Beschrijving

Te koop: Bedrijfspand te Harderwijk

Nobelstraat 44-A, 3846 CG Harderwijk

Kadastrale gegevens:
Gemeente: Harderwijk
Sectie: A
Nummer: 4520
Groot: 3.635 m2

Algemene informatie: 
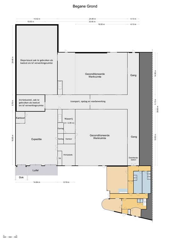
Op industrieterrein "Lorentz II " aan de Nobelstraat 44 Ate Harderwijk gelegen bedrijfscomplex bestaande uit (geconditioneerde) bedrijfsruimte, kantoorruimte, kantine, kleedruimten, sanitaire ruimten, overdekt loadingdock en voorgelegen verhard buiten-/parkeerterrein.
Het object beschikt over specialistische installaties zeals koelcellen, vriescel, vriestunnel en gekoelde verwerkingsruimten. Dit maakt het geheel bij uitstek interessant voor levensmiddelen (HACCP) gerelateerde bedrijven.
Industrieterrein Lorentz is het grootste aaneengesloten bedrijventerrein van Gelderland en heeft een zeer centrale ligging en snelle verbinding via A28 en de N302.

Bereikbaarheid:
Met eigen vervoer
Goed bereikbaar met eigen vervoer, de nabij uitvalswegen A28 (Amersfoort-Zwolle) en de N302 (Harderwijk-Lelystad) zijn nabijgelegen.

Met het openbaar vervoer
Redelijk bereikbaar met het openbaar vervoer. Dichtstbijzijnde bushalte: Transverko B.V., loopafstand: 0,9 km, looptijd: 11 min.
Dichtstbijzijnde treinstation: Harderwijk, loopafstand: 4,5 km, looptijd: 56 min.

Oppervlakte:
De totale oppervlakte bedraagt circa 2.347 m2 v.v.o, verdeeld over:
-	circa 1.858 m2 bedrijfsruimte begane grond
-	circa 246,7 m2 kantoor-/kantine-/kleedruimte begane grond
-	circa 242,3 m2 kantoor-/archiefruimte 1e verdieping
Tevens circa 49,5 m2 overdekte luifel buiten. Het buiten-/ parkeerterrein excl. loadingdock is circa 1.150 m2 groot.

Bebouwde metrage conform NEN2580 meetrapport. De Meetinstructie is bedoeld om een meer eenduidige manier van meten toe te passen voor het geven van een indicatie van de gebruiksoppervlakte. De Meetinstructie sluit verschillen in meetuitkomsten niet volledig uit, door bijvoorbeeld interpretatieverschillen, afrondingen of beperkingen bij het uitvoeren van de meting.

Parkeren:
25 parkeerplaatsen op eigen terrein.

Constructief/bouwkundig:
- Bouwjaar 2002;
- Vrije hoogten: kantoor ca. 2,5 m, expeditie ca. 5,8 m en bedrijfshal ca. 4,15 m;
- Vloerbelasting: onbekend;
- Keuring NEN3140: uitgevoerd op 14-05-2020.

Energielabel: B (geldig tot september 2032).

Opleveringsniveau en voorzieningen:
Kantoorruimte:
- Eigen meterkast v.v. aansluitingen op gas, water, elektra, telefonie en glasvezel;
- Alarm-, brandmeld-, noodverlichtings- en ontruimingsinstallatie (led en tl);
- Systeemplafonds met ingebouwde verlichtingsarmaturen;
- Dubbele C.V.-installatie v.v. radiatoren en deels vloerverwarming;
- Mechanische ventilatie;
- Diverse airconditioningunits;
- Serverruimte v.v. patchkast;
- Kabelgoten v.v. elektra- en databekabeling;
- Deels te openen ramen v.v. dubbel glas en deels v.v. ventilatieroosters en screens;
- Dames en heren was- en kleedkamer v.v. wastafels en toiletten/urinoirs;
- Kantine v.v. keukenblok met onder- en bovenkastjes, spoelbak en vaatwasser;
- Diverse brandblussers en/of brandslanghaspels;
- Vluchtwegaanduiding/transparantverlichting 
- Archiefruimte;
- Huidige scheidingswanden;
- Huidige vloerbedekking.

Bedrijfsruimte:
- Gekoelde verwerkingsruimten, koelcellen, voormalige vriescel en vriestunnel (ondervloer v.v. vloerverwarming);
- Expeditie-/ opslagruimte;
- Loadingdock v.v. leveller, shelter en elektrische overheaddeur (3b x 3h);
- 2 elektrische overheaddeuren op maaiveld (4b x 4,5h);
- Luifel voor overheaddeuren;
-Betonvloer v.v. coating en vloergoten/-putten (HACCP vloer Hygiënisch, vloeistofdicht);
- Vloerbelasting begane grond onbekend;
- Vrije hoogte variërend van ca. 2.62 tot ca. 4.18 tot ca. 5.70 meter;
- Verlichtingsarmaturen;
- Koelcellen (tot ca. 4-5 graden) v.v. koelmachines;
- Voormalige vriescel;
- Brandslanghaspels;
- Divers aantal 230 volt en 400 volt (krachtstroom) aansluitingen;
- Diverse loop- en vluchtdeuren;
- Stalen trappen;
- Dakluik;
- Technische ruimten;
- Vluchtwegaanduiding/transparantverlichting;
- Aanrijdbeveiliging;
- Ramen in gevel.

Buitenterrein:
- Verhard middels klinkerbestrating;
- Straatverlichting;
- Laadkuil en pomp put;
- Vetvangputten; 
- Trafohuis;
- Buitenverlichting;
- Parkeerplaatsindeling.

Bestemming:
Van toepassing is o.a. bestemmingsplan "Lorentz I en II", artikel "3 Bedrijf". De voor "Bedrijf" aangewezen gronden zijn bestemd voor:
a.	bedrijven behorend tot categorie 1 tot en met 5.3 welke zijn opgenomen in Bijlage 1 Staat van bedrijfsactiviteiten;
b.	detailhandel als ondergeschikte nevenactiviteit, met dien verstande dat:
1.	De detailhandel rechtstreeks verband houdt met of rechtstreeks voortvloeit uit een op grond van sub a toegestane hoofdactiviteit;
2.	Het verkoopvloeroppervlak van de ondergeschikte detailhandel niet meer mag bedragen dan 25% van het bruto vloeroppervlak;
3.	Het verkoopvloeroppervlak niet meer mag bedragen dan 50 m2;
4.	De verkoop van voedings- en genotmiddelen, kleding en schoenen niet is toegestaan;
5.	De detailhandel plaatsvindt op hetzelfde bouwperceel als het hoofdgebouw
c.	industriele kantoren, met dien verstande dat het bruto dat het bruto vloeroppervlak van industriele kantoren niet meer mag bedragen dan 70% van het totale bruto vloeroppervlak per bedrijfsvestiging;
Koper dient zich ervan te vergewissen dat het aangeboden object de eigenschappen bezit, benodigd voor het door hem beoogde gebruik en dat het beoogde gebruik past binnen het vigerende bestemmingplan. Een bestemming kan aan verandering onderhevig zijn. Raadpleeg derhalve voor de actuele gegevens de website ruimtelijkeplannen.nl, de website van de betreffende gemeente of neem contact op met ons kantoor.

Elektra vermogen:
Fysieke capaciteit: 631kVa
Gecontracteerd vermogen: 354kW
Piekbelasting: 340kW

Bodem:
Koper vrijwaart verkoper voor alle aanspraken derden, waaronder de overheid, ter zake van de milieukundige toestand van het verkochte, de grond en het grondwater

Koopprijs: 
€2.410.000-, k.k.

Notaris:
Ter keuze van verkoper.

Aanvaarding:
Per 1 augustus 2025.

Zekerstelling: 
Er zal door koper een waarborgsom gestort worden ter grootte van 10% van de koopsom. 

Baten en lasten:
Verrekening lasten (zakelijke lasten, te weten onroerende zaak belasting, waterschapslasten, rioolrecht) voor zover het betreft het eigendom van de onroerende zaak.

Overdrachtsbelasting:
De overdrachtsbelasting komt voor rekening van koper.

Rechten en verplichtingen:
Koper aanvaardt het gekochte en de daarbij behorende grond inclusief alle bijzondere lasten en beperkingen, kwalitatieve rechten en verplichtingen, kettingbedingen e.d. blijkende en/of voortvloeiende uit de laatste akte(n), vrij van hypotheken, beslagen en inschrijvingen daarvan.

Overige voorwaarden en condities:
Koopovereenkomst op basis van het standaardmodel van de Raad voor Onroerende Zaken (ROZ).
De verkoop geschiedt onder het voorbehoud van gunning door eigenaar.

Bijzonderheden:
As is Where is
Het object zal "as is, where is" worden verkocht. Derhalve zonder enige verklaring of garanties met betrekking tot de huidige juridische, milieutechnische of fiscale aspecten en zonder garanties over de afwezigheid van gebreken, lasten en/of beperkingen.

W.W.F.T.
Ons kantoor en onze dienstverlening is onderhevig aan de W.W.F.T. (Wet ter voorkoming van witwassen en financieren van terrorisme). Wij dienen derhalve van iedere koper verplicht de identiteit te identificeren en te verifiëren alsmede de herkomst van het vermogen vast te stellen alvorens een onderhandeling aan te kunnen gaan. Bij een natuurlijk persoon ontvangen derhalve bij een bieding graag een kopie legitimatiebewijs en een verklaring omtrent de herkomst van het vermogen. Bij een rechtspersoon ontvangen wij op voorhand graag een recent uittreksel Kamer van Koophandel, UBO verklaring, verklaring herkomst vermogen en de identiteitsbewijzen van alle UBO('s).
Wij zijn verplicht een clientonderzoek uit te voeren naar alle UBO's alvorens biedingen in behandeling te kunnen nemen.

Kenmerken