Beschrijving

Instapklare maisonnette met energielabel A, tuin en berging in de populaire Filmwijk

In de geliefde en centraal gelegen Filmwijk bieden wij deze goed onderhouden maisonnettewoning met energielabel A aan. De woning is verdeeld over twee woonlagen, beschikt over een zonnige tuin met overkapping én een vrijstaande berging. Dankzij de praktische indeling, moderne afwerking en uitstekende ligging is dit een ideale woning voor starters en jonge stellen.

Indeling

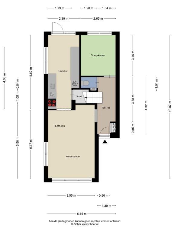
Entree met hal en trapopgang naar de verdieping. Vanuit de hal is er toegang tot het toilet en de woonkamer.

De lichte woonkamer bevindt zich aan de tuinzijde en biedt voldoende ruimte voor een comfortabele zithoek. Aansluitend ligt de eetkamer, die in open verbinding staat met de keuken.

De strakke keuken is uitgevoerd in een lichte kleurstelling en voorzien van diverse inbouwapparatuur, waaronder een kookplaat, oven, afzuigkap en koelkast. Vanuit de keuken is er directe toegang tot de achtertuin.

Eerste verdieping

Overloop met toegang tot de vertrekken.
De ruime slaapkamer strekt zich uit over de volledige breedte van de woning en biedt meer dan voldoende ruimte voor een tweepersoonsbed en kastenwand.
De badkamer is modern afgewerkt en voorzien van een inloopdouche, wastafelmeubel en toilet.
Daarnaast is er een praktische inpandige berging met opstelplaats voor de wasmachine.

Tuin

De achtertuin is verzorgd aangelegd.

Bij de woning hoort een vrijstaande stenen berging van circa 6,8 m², ideaal voor fietsen en extra opslag. 

De Filmwijk staat bekend om haar rustige, groene karakter en uitstekende bereikbaarheid. Op korte afstand bevinden zich supermarkten, scholen, openbaar vervoer en het centrum van Almere-Stad. Ook de uitvalswegen richting de A6 en A27 zijn snel bereikbaar.

Bijzonderheden

-Maisonnettewoning verdeeld over twee woonlagen
-Woonoppervlakte ca. 76,9 m²
-Energielabel A
-Moderne keuken en badkamer
-Vrijstaande berging
-Actieve en gezonde VvE
-Gelegen in de populaire Filmwijk

Een comfortabele, energiezuinige en instapklare woning op een fijne locatie. Ideaal voor wie centraal wil wonen met alle voorzieningen binnen handbereik.

Kenmerken