Beschrijving

Deze nette en instapklare tussenwoning is gelegen in een rustige woonwijk in Emmeloord en biedt een verrassend ruime en lichte leefomgeving. De woning beschikt over een verzorgde uitstraling, een moderne afwerking en een prettige indeling met drie slaapkamers. Dankzij de grote raampartijen aan zowel de voor- als achterzijde geniet de woonkamer van veel natuurlijk licht, wat zorgt voor een aangename en open sfeer. De woning is goed onderhouden en daarmee direct te betrekken, maar biedt tegelijkertijd mogelijkheden om naar eigen wens verder te personaliseren.

Let op: Vraagprijs betreft een bieden vanaf prijs.

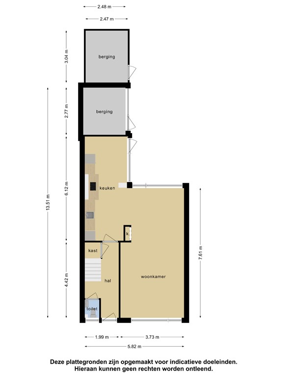
Indeling

Via de entree komt u in de hal met meterkast, modern toilet, trapopgang en praktische bergruimte. Vanuit hier bereikt u de royale doorzonwoonkamer, die is afgewerkt met een nette vloer en strakke wanden. De zithoek aan de voorzijde en de eetkamer aan de achterzijde sluiten naadloos op elkaar aan en creëren een fijne leefruimte voor dagelijks gebruik en het ontvangen van gasten. De halfopen keuken bevindt zich aan de achterzijde en is functioneel ingericht met voldoende werk- en opbergruimte, met directe toegang tot de tuin.

Eerste verdieping

Op de eerste verdieping bevinden zich drie slaapkamers van goed formaat, allen voorzien van daglicht en praktisch in te delen. De overloop geeft daarnaast toegang tot de badkamer, welke is uitgerust met een ligbad, wastafel en toilet. Tevens is er een separate cv-ruimte aanwezig, wat zorgt voor extra bergruimte en een efficiënte indeling van de verdieping.

Tuin

De achtertuin is onderhoudsvriendelijk aangelegd en biedt voldoende ruimte om te genieten van het buitenleven. Daarnaast beschikt de woning over meerdere bergingen, ideaal voor het opslaan van fietsen en gereedschap. In de directe omgeving vindt u diverse voorzieningen zoals winkels, scholen en openbaar vervoer. Een complete gezinswoning op een fijne locatie, waar comfort en mogelijkheden samenkomen.

Bijzonderheden

-Vraagprijs: € 295.000 k.k. (bieden in overleg)
-Woonoppervlakte circa 99 m²
-Perceeloppervlakte 155 m²
-Drie volwaardige slaapkamers
-Lichte doorzonwoonkamer met grote raampartijen
-Moderne afwerking op de begane grond
-Onderhoudsvriendelijke voor- en achtertuin
-Meerdere bergingen aanwezig
-Energielabel D
-Gelegen in een rustige en kindvriendelijke woonwijk
-Nabij winkels, scholen en openbaar vervoer
-Aanvaarding in overleg

Aan deze presentatie kunnen geen rechten worden ontleend.
Toelichtingsclausule NEN2580. De Meetinstructie is gebaseerd op de NEN2580. De Meetinstructie is bedoeld om een meer eenduidige manier van meten toe te passen voor het geven van een indicatie van de gebruiksoppervlakte. De Meetinstructie sluit verschillen in meetuitkomsten niet volledig uit, door bijvoorbeeld interpretatieverschillen, afrondingen of beperkingen bij het uitvoeren van de meting.

Kenmerken