Beschrijving
Speels ingedeeld appartement met twee slaapkamers, balkon, berging en extra buitenruimte aan de voorzijde
Op een rustige locatie in Emmeloord staat dit verrassend ruime appartement verdeeld over meerdere woonlagen. De woning beschikt over een lichte woonkamer met open keuken, twee slaapkamers, een balkon en een praktische berging op de begane grond. Daarnaast beschikt de woning over een extra stuk grond aan de voorzijde van circa 15 m², direct bij de entree.
De woning maakt onderdeel uit van een kleinschalig complex en is een uitstekende kans voor starters, alleenstaanden of kleine huishoudens die comfortabel willen wonen op een fijne locatie.
Indeling
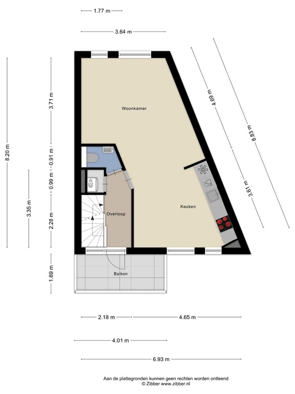
Via de eigen entree op de begane grond komt u binnen in de hal met trapopgang naar de woonverdieping. Op deze verdieping bevindt zich tevens een praktische berging, ideaal voor fietsen, gereedschap of extra opslag.
Eerste verdieping
De eerste verdieping vormt het hart van de woning. Hier bevindt zich de lichte woonkamer met open keuken. Dankzij de grote ramen aan de voorzijde valt er veel daglicht binnen, wat zorgt voor een prettige en open sfeer.
De woonkamer biedt voldoende ruimte voor zowel een comfortabele zithoek als een eethoek. De keuken is in een rechte opstelling geplaatst en voorzien van diverse inbouwapparatuur.
Vanuit de woonkamer is er toegang tot het balkon, een fijne plek om buiten te zitten.
Op deze verdieping bevindt zich tevens een separate toiletruimte en de overloop met trapopgang naar de slaapverdieping.
Tweede verdieping
Op de tweede verdieping bevinden zich twee slaapkamers en de badkamer. Door de schuine kap hebben de kamers een speelse indeling en een gezellige sfeer.
De badkamer is voorzien van een douche, wastafel en sanitaire voorzieningen.
Overige verdiepingen
Via een vlizotrap is de zolderverdieping bereikbaar. Deze ruimte is uitstekend te gebruiken als bergruimte.
Bijzonderheden
-Appartement verdeeld over meerdere woonlagen
-Gebruiksoppervlakte wonen ca. 75 m²
-Overige inpandige ruimte ca. 12,5 m²
-Balkon ca. 8 m²
-Twee slaapkamers
-Eigen entree
-Berging op de begane grond
-Energielabel C
-Actieve Vereniging van Eigenaren
Plattegronden
183067501_1634343_volen_begane_grond_first_design_20260307_722ff6.jpg
183067501_1634343_volen_eerste_verdiepi_first_design_20260307_da27cd.jpg
183067501_1634343_volen_tweede_verdiepi_first_design_20260307_102e4a.jpg
183067501_1634343_volen_zolder_first_design_20260307_6b15a6.jpg