Beschrijving
Vrij wonen in het buitengebied met weids uitzicht over de landerijen – deze karakteristieke woning biedt rust, ruimte én interessante toekomstmogelijkheden. De woning is netjes bewoond, maar biedt tegelijkertijd volop kansen voor modernisering en uitbreiding naar eigen wens.
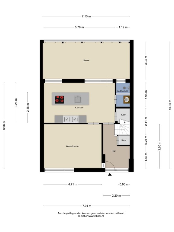
Indeling
Via de entree komt u in de hal met trapopgang, kastruimte en toegang tot de verschillende vertrekken.
De woonkamer aan de voorzijde is ruim opgezet en geniet van veel lichtinval door de grote raampartijen. Vanuit de woonkamer is er zicht op het groene erf en de rustige omgeving.
Aan de achterzijde bevindt zich de keuken, uitgevoerd met een modern kookeiland en diverse inbouwapparatuur. De keuken staat in directe verbinding met de serre, waardoor een prettige en lichte leefruimte ontstaat. De serre vormt een mooie overgang naar de tuin en zorgt voor extra leefcomfort.
Daarnaast bevindt zich op de begane grond een badkamer.
Eerste verdieping
De eerste verdieping beschikt over een overloop met toegang tot twee slaapkamers. Beide kamers zijn van goed formaat en bieden mogelijkheden voor herindeling of uitbreiding.
Daarnaast is er een tweede badkamer aanwezig, wat extra comfort biedt voor gezinnen of gasten.
Tweede verdieping
De zolder is bereikbaar via een vaste trap en biedt praktische bergruimte. Deze verdieping kan eventueel verder benut worden, afhankelijk van de wensen van de koper.
Tuin
De woning staat op een ruim perceel met een diepe achtertuin. Hier geniet u van veel privacy en een vrij uitzicht over de omliggende landerijen.
De tuin biedt volop mogelijkheden voor tuinliefhebbers en het creëren van meerdere zitplekken. Dankzij de ligging en ruimte is dit een ideale plek om in alle rust van het buitenleven te genieten.
Bijzonderheden
-Landelijk gelegen in het buitengebied van Espel
-Vrij uitzicht over de landerijen
-Woonoppervlakte circa 81 m²
-Perceel circa 605 m²
-Twee slaapkamers
-Twee badkamers (begane grond en verdieping)
-Serre aan de achterzijde
-Kelder en zolder aanwezig
-Mogelijkheden tot modernisering en herindeling
Plattegronden
184597786_1645965_onder_begane_grond_first_design_20260417_39ee15.jpg
184597786_1645965_onder_eerste_verdiepi_first_design_20260417_821669.jpg
184597786_1645965_onder_zolder_first_design_20260417_f768f0.jpg
184597786_1645965_onder_kelder_first_design_20260417_ae25c8.jpg