Beschrijving

Aan de karakteristieke Nieuwedijk, nabij het oude centrum van Lemmer, ligt deze charmante twee-onder-een-kapwoning. Een combinatie van sfeer, comfort en historie, gelegen op een centrale plek met winkels, horeca en de gezellige jachthaven op loopafstand. De woning maakt deel uit van het beschermd stads- en dorpsgezicht, waardoor u woont in een uniek stukje Lemster geschiedenis.

-Vraagprijs: € 315.000,- k.k.
-Energielabel: C
-Woonoppervlakte: 67,8 m²
-Perceeloppervlakte: 152 m²
-Bouwjaar: 1880 (historisch pand / beschermd stads- dorpsgezicht)

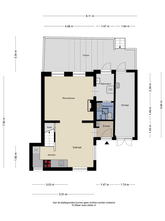
Indeling

-Entree met toegang tot de badkamer met toilet.
-Gezellige woonkamer met prettig lichtinval, voorzien van elektrische zonwering aan de achterzijde.
-Open keuken, recent volledig gemoderniseerd en uitgerust met: Inbouw combi-oven, Vaatwasser en Koelkast
-Praktische bijkeuken met toegang tot het verhoogde terras en de achtertuin.
-Aansluitend een volledig geïsoleerde en verwarmde schuur (voormalige garage); praktisch als berging of hobbyruimte, maar niet geschikt voor het parkeren van een auto.

Eerste verdieping

-Master bedroom aan de achterzijde, voorzien van openslaande ramen en airconditioning.
-Tweede slaapkamer aan de achterzijde, voorzien van dakraam.
-Overloop met bergruimte.

Tuin

De woning beschikt over een eigen oprit, een luxe in dit centrale deel van Lemmer. Achter de woning ligt een verzorgde tuin met privacy en een verhoogd terras dat bereikbaar is vanuit de bijkeuken. Een fijne plek om te ontspannen.

Lemmer staat bekend om zijn maritieme karakter, gezellige horeca en het fijne stadsstrand aan het IJsselmeer. Vanaf Nieuwedijk 51 loopt u binnen enkele minuten naar: De jachthaven, Het historisch centrum, Supermarkten, winkels en terrassen en het strand van Lemmer. Een heerlijke woonomgeving voor wie houdt van levendigheid én rust.

Bijzonderheden

-Energielabel C
-Pelletkachel voor extra sfeer en warmte
-Recent vernieuwde keuken met inbouwapparatuur
-Volledig voorzien van dubbel glas
-Schuur volledig geïsoleerd en verwarmd
-Eigen oprit
-Beschermd stads- en dorpsgezicht
-Master bedroom voorzien van airco
-Centrale ligging: centrum, haven en voorzieningen op loopafstand
-Perceeloppervlakte: 152 m²

Bent u op zoek naar een karakteristieke, goed onderhouden woning op een unieke locatie? Neem gerust contact met ons op. Wij laten u deze bijzondere woning graag zien.

Kenmerken