Beschrijving
Vrijstaande woonboerderij met ca. 950 m² aan bijgebouwen op maar liefst 17.977 m² eigen grond
Wonen & werken | Agrarisch | Paarden aan huis | Bed & Breakfast | Mantelzorg | Praktijkruimte
Het is eventueel mogelijk om het perceel te splitsen. Neem contact op met ons kantoor om de mogelijkheden te bespreken.
In het prachtige buitengebied van het polderdorp Marknesse, op korte fietsafstand van Emmeloord, staat deze imposante vrijstaande woonboerderij op een royaal en vrij gelegen perceel van maar liefst 17.977 m² eigen grond. Een unieke locatie waar rust, ruimte en veelzijdigheid samenkomen. Een object dat uitermate geschikt is voor wie wonen en werken wil combineren, paarden aan huis wenst, een Bed & Breakfast wil starten, kangoeroewonen overweegt of ruimte zoekt voor opslag, hobby of onderneming.
De woonboerderij ligt op meerdere aaneengesloten percelen met een combinatie van woon- en agrarische bestemmingen:
B3435 – Agrarisch – 4.530 m²
B580 – Agrarisch – 4.490 m²
B2286 – Wonen/Agrarisch – 4.479 m²
B3363 – Akkerbouw – 4.530 m²
Woonoppervlakte & inhoud
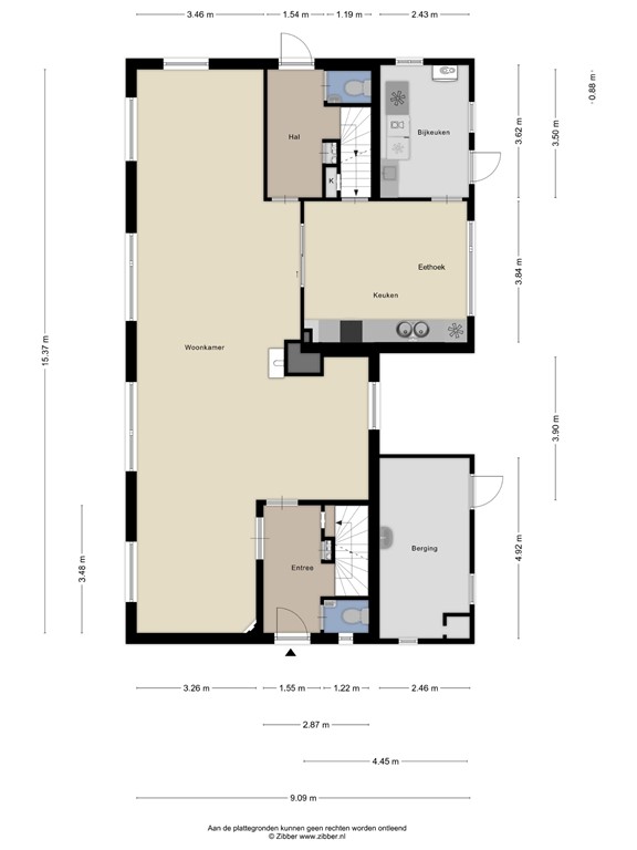
Woonoppervlakte: ca. 207,6 m²
Inpandige ruimte: ca. 64,7 m²
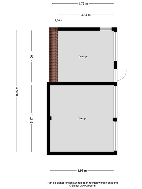
Externe bergruimte (schuren): ca. 949,9 m²
Totale inhoud woonboerderij: ca. 1.010 m³
Indeling
Entree/hal met trapopgang naar de eerste verdieping
Sfeervolle en lichte woonkamer met vrij uitzicht over het omliggende land en houtkachel
Royale woon-/leefkeuken met veel lichtinval
Praktische bijkeuken met CV-opstelling en witgoedaansluitingen
Diverse inpandige bergingen
Eerste verdieping
Drie ruime slaapkamers
Twee badkamers
Grote overloop met toegang tot de ruime bergzolder/vliering
Tuin
Rondom de woonboerderij ligt een fraai aangelegde sier- en landschapstuin met volwassen beplanting, meerdere zonneterrassen en volledige privacy. Absolute blikvanger is de grote vijver met koi karpers – een waar sieraad voor de tuin.
Vanaf het erf heeft u vrij uitzicht over de eigen landerijen en de omliggende akkers. De oprijlaan en erfverharding bieden ruime parkeergelegenheid voor meerdere auto’s, aanhangers of machines.
Bijgebouwen
De woonboerderij beschikt over een zeer uitgebreide schurenpartij met een totaal oppervlak van circa 950 m², als volgt verdeeld:
Zie plattegronden bijgevoegd aan de advertentie of bekijk de brochure.
Deze opstallen zijn ideaal voor:
Paardenstallen en paddocks
Caravan- en camperstalling
Werkplaats en opslag
Bedrijf aan huis
Hobby- of agrarisch gebruik
Bijzonderheden
-Maar liefst 17.977 m² eigen grond
-Combinatie van woon- en agrarische bestemming
-Ca. 950 m² aan bijgebouwen
-Grote vijver met koikarpers
-26 zonnepanelen
-Glasvezel aanwezig
-Vrij en landelijk gelegen
-Zeer geschikt voor paardenliefhebbers
-Ook geschikt voor mantelzorg, kangoeroewonen, B&B of praktijk aan huis
-Uitgebreide meetstaat aanwezig (NEN 2580)
Een unieke, multifunctionele woonboerderij op een uitzonderlijk ruim perceel, met enorme bijgebouwen, agrarische mogelijkheden, een prachtige tuin met koi-vijver en volledige privacy. Een object dat zelden op de markt komt in deze omvang en veelzijdigheid.
Afspraken voor bezichtigingen kunnen uitsluitend worden gemaakt via Makelaardij De Munt.
Wij verzoeken u vriendelijk niet op eigen initiatief het terrein te betreden.
Voor nadere informatie of het plannen van een bezichtiging kunt u contact opnemen met Makelaardij De Munt.
Plattegronden
180109072_1595361_voors_begane_grond_first_design_20251206_951312.jpg
180109072_1595361_voors_berging_first_design_20251206_0314e1.jpg
180109072_1595361_voors_berging_first_design_20251206_94061c.jpg
180109072_1595361_voors_eerste_verdiepi_first_design_20251206_6c4549.jpg
180109072_1595361_voors_garage_first_design_20251206_43b106.jpg
180109072_1595361_voors_garage_first_design_20251206_49bbe1.jpg
180109072_1595361_voors_garage_first_design_20251206_74e1f7.jpg
180109072_1595361_voors_garage_first_design_20251206_a8b5b2.jpg
180109072_1595361_voors_kelder_first_design_20251206_c382e1.jpg
180109072_1595361_voors_overkapping_first_design_20251206_aea63b.jpg
180109072_1595361_voors_vliering_first_design_20251206_2b5d15.jpg
180109072_1595361_voors_vliering_untitled_20251206_7b0901.jpg
180109072_1595361_voors_zolder_first_design_20251206_1f4e41.jpg
180109072-292795033-se-144981751-1765050396368.png
180109072-292850113-se-144981751-1765050396368.png
180109072-292876942-se-144981751-1765050396368.png
180109072-292879861-se-144981751-1765050396368.png
180109072-292879954-se-144981751-1765050396368.png
180109072-292880287-se-144981751-1765050396368.png
180109072-292880500-se-144981751-1765050396368.png
180109072-292880773-se-144981751-1765050396368.png
180109072-292881463-se-144981751-1765050396368.png
180109072-292881832-se-144981751-1765050396368.png
180109072-292881880-se-144981751-1765050396368.png
180109072-292882243-se-144981751-1765050396368.png
180109072-292882429-se-144981751-1765050396368.png