Beschrijving
Waterlelie 13 – Marknesse
Ruime 2-onder-1-kapwoning met garage, carport, zonnepanelen en een prachtig aangelegde tuin aan het water
In een rustige en kindvriendelijke woonwijk van Marknesse staat deze goed onderhouden 2-onder-1-kapwoning (1999) met grote en geïsoleerde garage, carport en een fraaie tuin op het zuiden. De woning biedt maar liefst 148,4 m² woonoppervlak, een praktische kelder, diverse bergingen en volop leefruimte voor het hele gezin. De woning beschikt over 4 slaapkamers en een werk-/sportkamer.
Dankzij de 26 zonnepanelen (2022, eigendom), een houtkachel, airconditioning en waterontharder is deze woning niet alleen comfortabel, maar ook toekomstbestendig en energiezuinig.
De tuin is een waar paradijs: met meerdere terrassen, kleurrijke borders, een veranda met zithoek en hangmat, een ingegraven trampoline en zelfs een aanlegplek met bootje aan het water. Hier geniet u volop van rust, ruimte en natuur.
Richtprijs € 525.000 k.k.
Indeling
-Entree/hal met trapopgang en modern toilet.
-Ruime woonkamer met houtkachel en openslaande deuren naar de tuin.
-Halfopen keuken (2015) met luxe inbouwapparatuur: 5-pits gasstel, stoomoven, Quooker, vaatwasser en een koelkast. De keuken is afgewerkt met een granieten aanrechtblad.
-Hobby-/werkkamer.
-Grote en geïsoleerde garage met een kastenwand, aansluiting voor wasmachine en droger, aan de voorzijde toegang tot de carport en aan de achterzijde naar de achtertuin.
-Boven de garage is aan de achterzijde een bergzolder te bereiken via een vlizotrap.
Eerste verdieping
-Overloop met inbouw-/kledingkast.
-Vier slaapkamers voorzien van rolluiken en horren.
-Moderne badkamer met inloopdouche, toilet, wastafelmeubel, designradiator en een dakraam.
-Werk-/sportkamer boven de garage aan de voorzijde van de woning. (Voorzien van airconditioning).
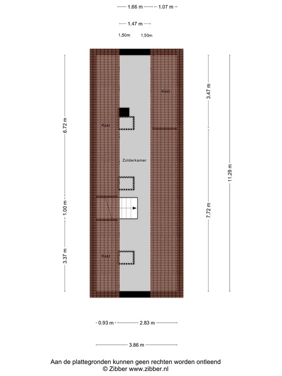
Tweede verdieping
-Ruime zolderverdieping te bereiken via vaste trap, voorzien van airconditioning, drie dakramen en veel bergruimte.
Tuin
-Fraai aangelegde achtertuin op het zuiden met gazon, borders en meerdere terrassen.
-Houten veranda met zithoek, hangmat en plek voor een buitenkeuken of BBQ.
-Ingegraven trampoline en houten schommel – perfect voor kinderen.
-Vrijstaande houten berging voor haardhout en extra opslagruimte.
-Terras aan het water met aanlegplek voor een bootje; ideaal voor ontspanning en speelplezier.
Bijzonderheden
-Energielabel: A+
-Gebruiksoppervlakte wonen: 148,4 m² (NEN 2580).
-Overige inpandige ruimte (garage, kelder, bergzolder): 45,5 m².
-Gebouwgebonden buitenruimte (carport/overkapping): 18,7 m².
-Inhoud woning: 686,74 m³.
-Perceel: ca. 351 m².
-26 zonnepanelen (2022, eigendom), opbrengst ca. 7 MWh per jaar.
-Verwarming: HR-combiketel (Nefit Ecomline, 1999, eigendom).
-Extra comfort: houtkachel, vloerverwarming begane grond, radiatoren eerste verdieping, airconditioning.
-Waterontharder en laadpaal aanwezig.
-Garage en carport.
-Gelegen aan een rustige, autoluwe straat.
-Basisschool, supermarkt, openbaar vervoer en medische zorg op loopafstand.
Waterlelie 13 combineert ruimte, duurzaamheid en wooncomfort met een prachtige ligging aan het water. De woning is instapklaar en biedt alles voor gezinnen die op zoek zijn naar een fijn en compleet thuis.
Plattegronden
176043349_1573561_water_begane_grond_first_design_20250825_c501d6.jpg
176043349_1573561_water_eerste_verdiepi_first_design_20250825_052b85.jpg
176043349_1573561_water_tweede_verdiepi_first_design_20250825_d34f26.jpg
176043349_1573561_water_kelder_first_design_20250825_ac77db.jpg
176043349_1573561_water_overkapping_first_design_20250825_d7cf27.jpg