Beschrijving

Aan de rand van het brinkdorp Ruinen staat deze royale vrijstaande woning uit 1955. De woning is in de afgelopen jaren gemoderniseerd en combineert karakter met hedendaags comfort. Met een woonoppervlakte van circa 174 m² op een perceel van 297 m² biedt deze woning verrassend veel leefruimte en mogelijkheden voor zowel gezinnen als mensen die toekomstbestendig willen wonen. 

De woning ligt in een rustige woonomgeving, nabij natuur en bossen, terwijl voorzieningen van het dorp op korte afstand bereikbaar zijn. Dankzij de royale indeling, de vrijstaande garage en diverse praktische ruimtes is dit een woning met veel potentie voor de toekomst.

Indeling

Via de entree komt u in de hal met trapopgang. Vanuit hier bereikt u de ruime woonkamer. Deze lichte leefruimte is sfeervol afgewerkt en beschikt over een gezellige gashaard, wat zorgt voor een warme en uitnodigende sfeer. De indeling biedt voldoende ruimte voor meerdere zithoeken en staat in open verbinding met de eetkamer.

De eetkamer vormt een centrale plek in de woning en biedt toegang tot de keuken. De keuken is praktisch ingericht en voorzien van diverse inbouwapparatuur en voldoende werk- en kastruimte. Aansluitend bevindt zich de wasruimte met witgoedaansluitingen. Vanuit de keuken bereikt u tevens de bijkeuken, die extra bergruimte en functionaliteit biedt. Tevens zit hier het toilet met een toilet, wasbak en urinoir.

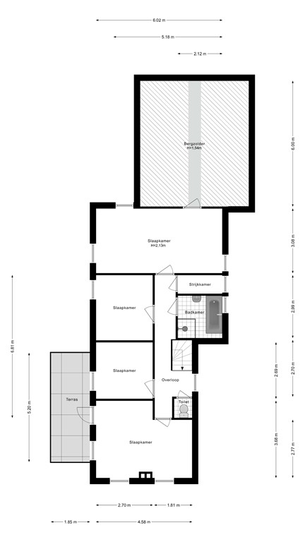
Eerste verdieping

Op de eerste verdieping bevinden zich momenteel drie ruime slaapkamers, met de mogelijkheid om een vierde slaapkamer te realiseren. De badkamer is voorzien van een inloopdouche, toilet en een dubbele wastafel. Daarnaast is er een separaat toilet en praktische bergruimte aanwezig.

Tuin

De tuin is onderhoudsvriendelijk aangelegd en biedt voldoende ruimte om van het buitenleven te genieten. Op het perceel staat een vrijstaande garage, ideaal voor opslag, hobbyruimte of het parkeren van een auto.

Bijzonderheden

-Vrijstaande woning
-Bouwjaar: 1955
-Woonoppervlakte: ca. 174 m²
-Inhoud: ca. 603 m³
-Perceeloppervlakte: 297 m²
-Sfeervolle woonkamer met gashaard
-Keuken met bijkeuken en wasruimte
-Drie slaapkamers (mogelijkheid tot vier)
-Vrijstaande garage
-Onderhoud grotendeels uitgevoerd in 2024
-24 zonnepanelen
-Energielabel C

Let op: de vraagprijs betreft een bieden-vanaf-prijs.

Kenmerken